kenmore 116 51612002 wiring diagram

1991 GMC Top Kick Kodiak Medium Duty Electrical Wiring Diagram Service. 18 Pictures about 1991 GMC Top Kick Kodiak Medium Duty Electrical Wiring Diagram Service : 32 Kenmore Vacuum Model 116 Parts Diagram - Wiring Diagram Niche, 301 Moved Permanently and also Kenmore model 79095663200 free standing, electric genuine parts.

1991 GMC Top Kick Kodiak Medium Duty Electrical Wiring Diagram Service

1991 GMC Top Kick Kodiak Medium Duty Electrical Wiring Diagram Service www.autopaper.com

kodiak 1991

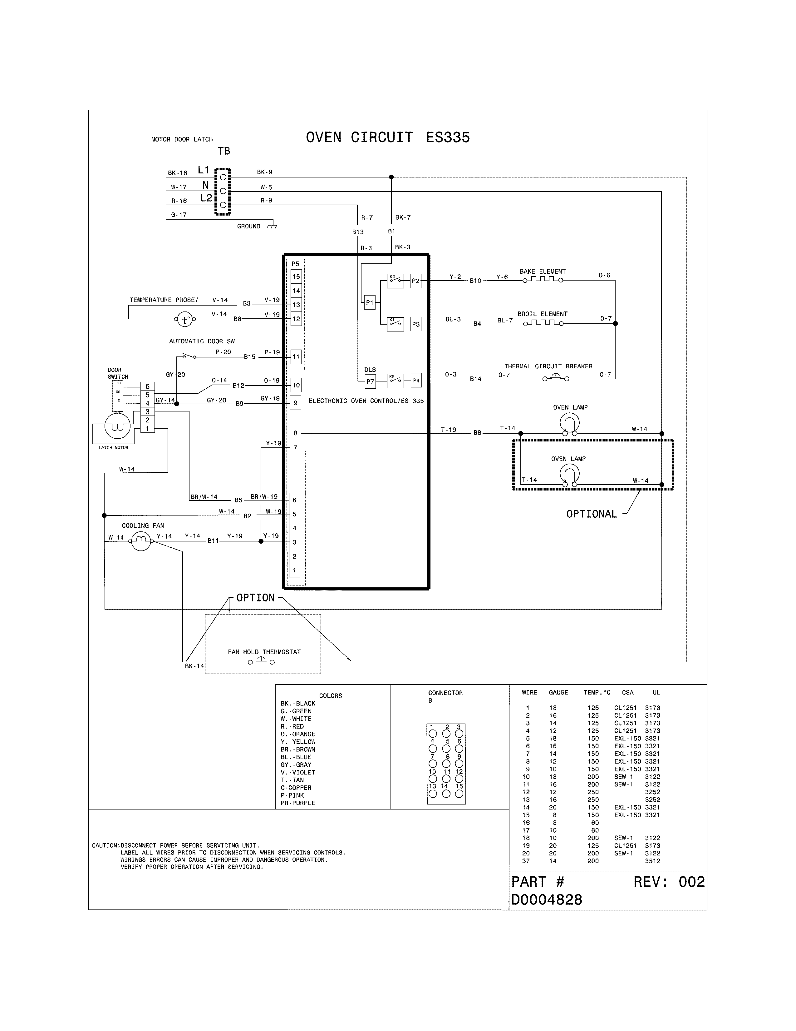
301 Moved Permanently

301 Moved Permanently parts.sears.com

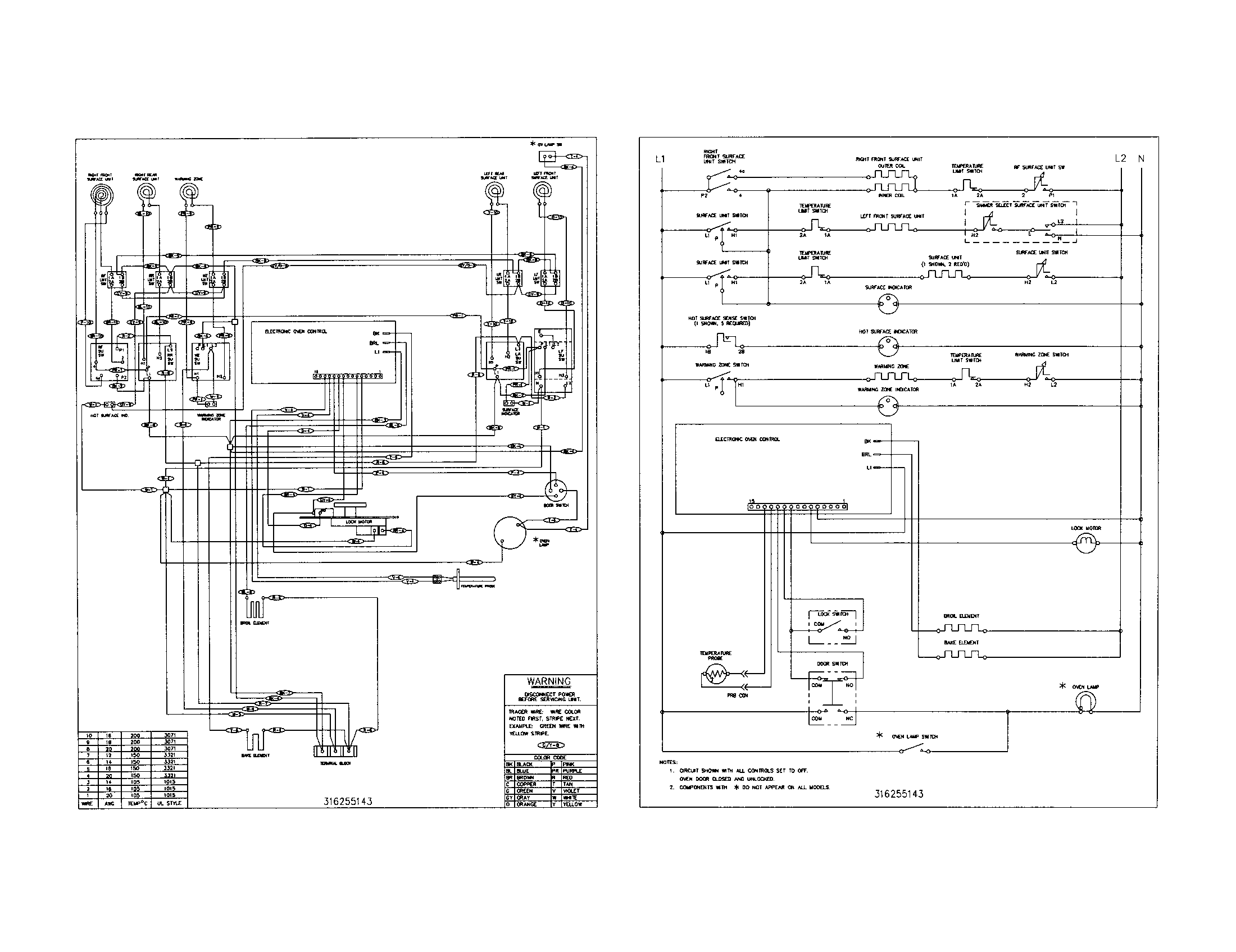
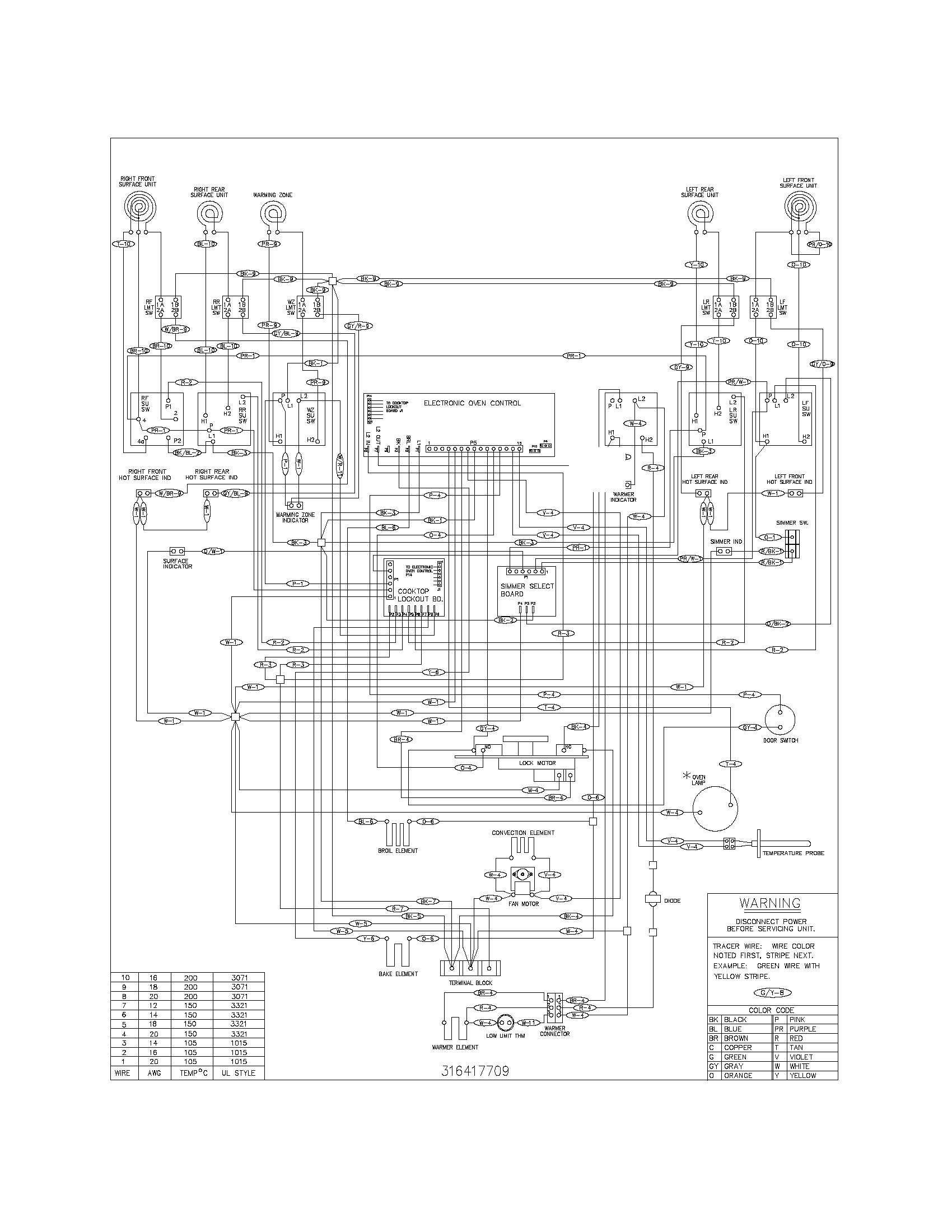
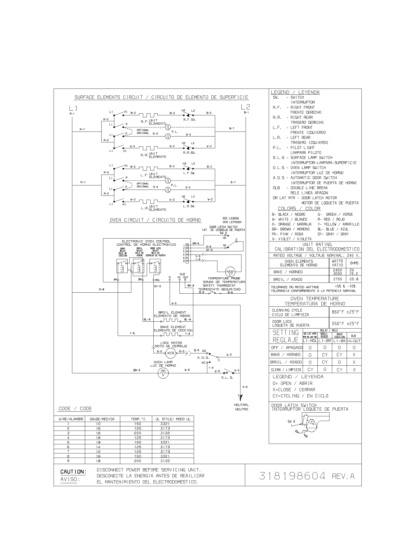
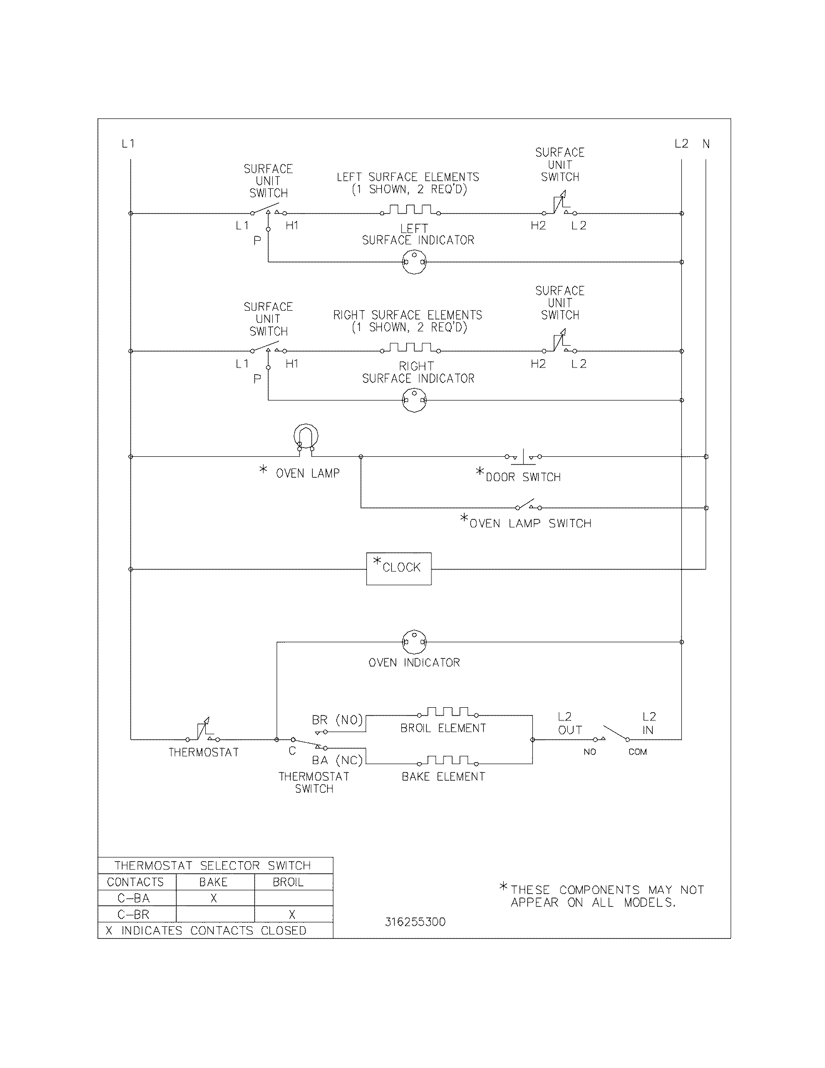
electric kenmore diagram parts range

Vw Voltage Regulator Wiring Diagram

Vw Voltage Regulator Wiring Diagram www.tankbig.com

vw regulator diagram wiring voltage alternator beetle 1974 external ford cargurus helpful

Erbauer Table Saw Wiring Diagram | DIYnot Forums

Erbauer table saw wiring diagram | DIYnot Forums www.diynot.com

wiring saw table erbauer diagram switch craftsman diynot rexon diy

Kenmore Model 41740142000 Residential Washers Genuine Parts

Kenmore model 41740142000 residential washers genuine parts www.searspartsdirect.com

wiring diagram kenmore washers residential

Kenmore Model 79095663200 Free Standing, Electric Genuine Parts

Kenmore model 79095663200 free standing, electric genuine parts www.searspartsdirect.com

kenmore

Kenmore Model 79090102200 Free Standing, Electric Genuine Parts

Kenmore model 79090102200 free standing, electric genuine parts www.searspartsdirect.com

kenmore

Kenmore Model 79042513313 Slide-in Range, Electric Genuine Parts

Kenmore model 79042513313 slide-in range, electric genuine parts www.searspartsdirect.com

kenmore

32 Kenmore Vacuum Model 116 Parts Diagram - Wiring Diagram Niche

32 Kenmore Vacuum Model 116 Parts Diagram - Wiring Diagram Niche dominicluta.blogspot.com

vacuum kenmore

1964 Chevy Impala Wiring Diagram

1964 Chevy Impala Wiring Diagram www.chanish.org

fuse impala box 1966 diagram wiring ignition chevy 1964 truck 66 help restoration chevrolet 3dpd forums

Kenmore 6289447220 Electric Range Parts | Sears PartsDirect

Kenmore 6289447220 electric range parts | Sears PartsDirect www.searspartsdirect.com

kenmore

73 Chevy Nova Electrical Wiring Diagram Manual 1973 - I-5 Classic Chevy

73 Chevy Nova Electrical Wiring Diagram Manual 1973 - I-5 Classic Chevy i5chevy.com

1973-74 Bus Wiring Diagram | TheGoldenBug.com

1973-74 Bus Wiring diagram | TheGoldenBug.com www.thegoldenbug.com

vw wiring diagram 1973 bus symbols coded looking thegoldenbug key sheet

Kenmore Model 79090152307 Free Standing, Electric Genuine Parts

Kenmore model 79090152307 free standing, electric genuine parts www.searspartsdirect.com

kenmore

KENMORE | Model #79090820402 | ELECTRIC RANGE | SearsPartsDirect.com

KENMORE | Model #79090820402 | ELECTRIC RANGE | SearsPartsDirect.com commercial.searspartsdirect.com

kenmore searspartsdirect

Kenmore Model 41744142400 Residential Washers Genuine Parts

Kenmore model 41744142400 residential washers genuine parts www.searspartsdirect.com

diagram kenmore parts wiring washers residential

Kenmore Model 79096613402 Free Standing, Electric Genuine Parts

Kenmore model 79096613402 free standing, electric genuine parts www.searspartsdirect.com

kenmore tumble hotpoint searspartsdirect

2019 Nissan Radio Wiring Diagram Needed | The Nissan Club

2019 Nissan Radio Wiring Diagram Needed | The Nissan Club www.nissanclub.com

altima sentra versa the12volt nissanclub

Kenmore model 79090152307 free standing, electric genuine parts. Kenmore tumble hotpoint searspartsdirect. 2019 nissan radio wiring diagram needed