kenmore upright zer wiring diagram

SOLVED: I need a wiring diagram for a Kenmore oven model - Fixya. 13 Pics about SOLVED: I need a wiring diagram for a Kenmore oven model - Fixya : Kenmore model 158.162 need wiring diagram for connector - Fixya, what is: wiring diagram for Kenmore refrigerator 363.59572990 and also Refrigerator Parts: Kenmore Parts Refrigerator Ice Maker.

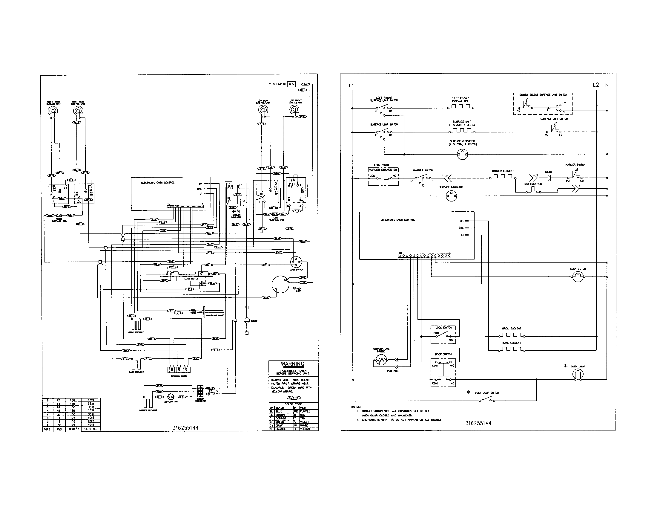
SOLVED: I Need A Wiring Diagram For A Kenmore Oven Model - Fixya

SOLVED: I need a wiring diagram for a Kenmore oven model - Fixya www.fixya.com

wiring diagram kenmore oven need

Maytag Refrigeratore: April 2016

Maytag Refrigeratore: April 2016 maytagrefrigeratorebutsumimo.blogspot.com

refrigerator maytag ice2o

Kenmore Model 79093751102 Free Standing, Electric Genuine Parts

Kenmore model 79093751102 free standing, electric genuine parts www.searspartsdirect.com

wiring diagram kenmore standing electric

Kenmore Freezer Parts Diagram - Atkinsjewelry

Kenmore Freezer Parts Diagram - Atkinsjewelry atkinsjewelry.blogspot.com

kenmore freezer

Kenmore Elite Refrigerator Wiring Diagram - Wiring Diagram Schemas

Kenmore Elite Refrigerator Wiring Diagram - Wiring Diagram Schemas wiringschemas.blogspot.com

kenmore frigidaire partsdirect searspartsdirect

Freezers: Upright Freezer With Ice Maker

Freezers: Upright Freezer With Ice Maker freezerslezar.blogspot.com

ice maker upright freezer freezers built condenser levelers allows installed bin adjustable dynamic leg

Refrigerator Parts: Kenmore Parts Refrigerator Ice Maker

Refrigerator Parts: Kenmore Parts Refrigerator Ice Maker refrigeratorpartsbroven.blogspot.com

kenmore

KENMORE ELECTRIC RANGE Parts | Model 79095329302 | Sears PartsDirect

KENMORE ELECTRIC RANGE Parts | Model 79095329302 | Sears PartsDirect www.searspartsdirect.com

kenmore diagram wiring electric range standing searspartsdirect parts

Wiring Diagram For A Kenmore 253.28093801 Upright Freezer | Flickr

Wiring Diagram for a Kenmore 253.28093801 Upright Freezer | Flickr www.flickr.com

diagram wiring freezer kenmore upright electrical schematic pmz chest

Kenmore Model 158.162 Need Wiring Diagram For Connector - Fixya

Kenmore model 158.162 need wiring diagram for connector - Fixya www.fixya.com

kenmore wire crackle pfaff quiltingboard fixya greyhound f22 enthusiasts

What Is: Wiring Diagram For Kenmore Refrigerator 363.59572990

what is: wiring diagram for Kenmore refrigerator 363.59572990 whatisbyme.blogspot.com

kenmore refrigerator wiring diagram side

KENMORE ELITE ELECTRIC RANGE Parts | Model 79046713604 | Sears PartsDirect

KENMORE ELITE ELECTRIC RANGE Parts | Model 79046713604 | Sears PartsDirect www.searspartsdirect.com

wiring diagram kenmore elite range electric slide

Wiring Diagram For Kenmore Electric Dryer

Wiring Diagram For Kenmore Electric Dryer wiringdiagramall.blogspot.com

wiring kenmore fixya admiral gas chanish dryers washer

Kenmore elite electric range parts. Wiring diagram kenmore standing electric. Refrigerator maytag ice2o